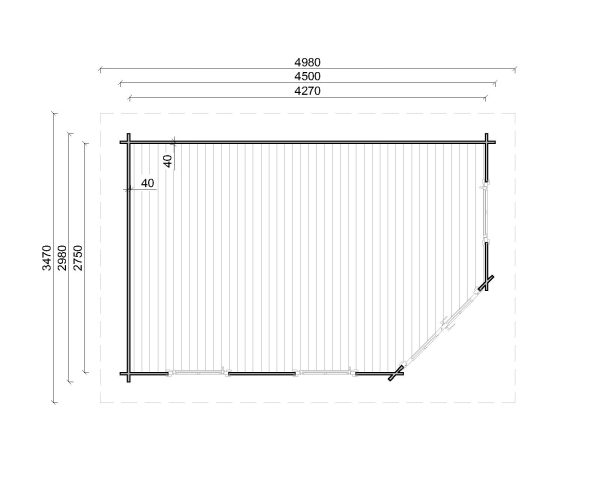
Abri de jardin Description Épaisseur de paroi 28 mm Dimensions des planches 450 x 298 cm Dimensions extérieures du mur 432 x 280 cm Avancée de toiture 25 cm Hauteur de mur 215 cm Hauteur totale 275 cm Surface utile 10.7 m2 Espace construit 25.8 m3 Surface du toit 20.50 m2 Double porte en lamellé-collé 122 x 187 cm Fenêtre 77 x 143 cm
| Inclus dans la livraison | |
|---|---|
| Toit en voliges | 18 mm |
| Vitrage en verre | ✓ |
| Porte de qualité supérieure en bois lamellé-collé | ✓ |
| Seuil de porte en inox | ✓ |
| Fenêtre avec ferrure pivotante/battante | ✓ |
| Poignée porte avec serrure intégrée | ✓ |
| Notice de montage | ✓ |
| Produit sans traitement | ✓ |
Veuillez noter que les lambourdes ne sont comprises que si vous commandez un plancher inclus.
